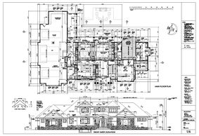
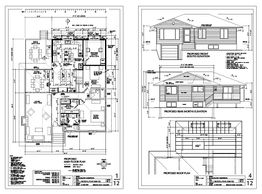
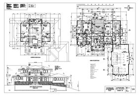
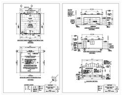
True Edge Concepts is a Calgary-based office specializing in design, construction and permit drawings for buildings under 6400 sq. ft. Our goal is to find the best design solution that's exciting, buildable and meets the budget.













Get the rooms in the right place for the best views, best sun and to block the wind.

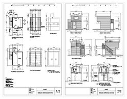
Accurate plans meet the Building Code and Land Use Bylaw.

See how your house fits on the lot.

Rough 3D studies to ensure there are no unwanted suprises during construction.

Realistic renderings study form, color and shadow.
3D animations show all angles.

Development Permits - Building Permits







